Zamknij

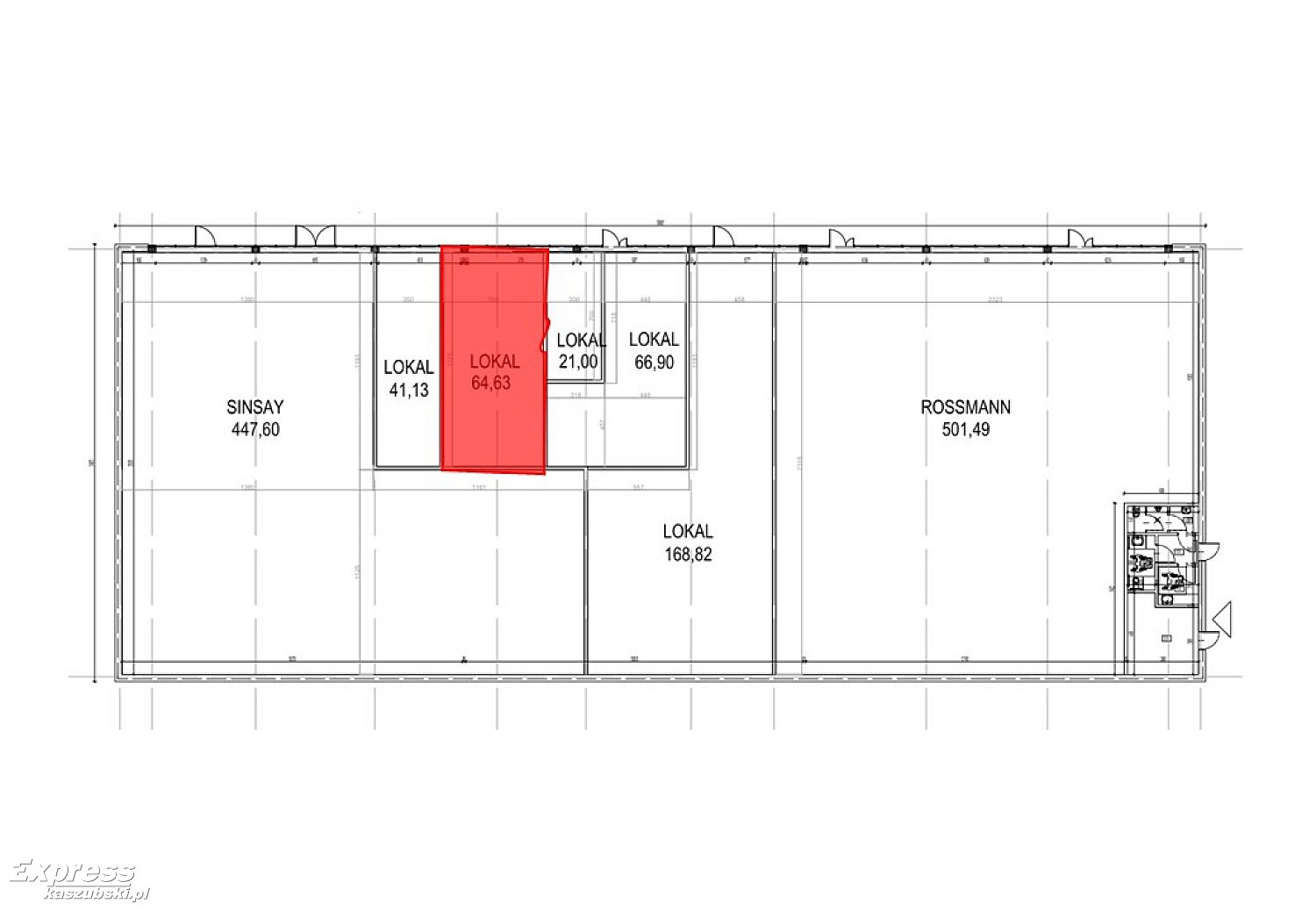
Do wynajęcia lokal 64,63 m² – Park Handlowo-Usługowy , Zielona Wieś

Data dodania: 2025-10-07 18:04:01

80 zl/m2 zł zdjecie ogloszenia

Opis

Oferujemy do wynajęcia nowoczesny lokal użytkowy o powierzchni 64,63 m², położony w Parku Handlowo-Usługowym Nowa Karczma w miejscowości Zielona Wieś.

Powierzchnia: 64,63 m²

Standard wykończenia: wysoki, możliwość aranżacji pod potrzeby najemcy

Lokalizacja: świetnie skomunikowana, w dynamicznie rozwijającym się rejonie

Sąsiedztwo: obok znajduje się Biedronka, a najemcami parku są m.in. Rossmann i Sinsay

Elastyczność: otwarci na rozmowy i propozycje najemców

To idealne miejsce dla sklepu, usług, punktu gastronomicznego czy biura. Lokalizacja gwarantuje doskonałą widoczność i duży ruch klientów, dzięki obecności znanych marek.

Skontaktuj się z nami, aby poznać szczegóły i obejrzeć lokal na żywo!

Kontakt ze sprzedającym

727Pokaż numer
Promuj to ogłoszenie